Strona 1 z 1
Szyberdach

Napisane:
24 maja 2021, 11:09
przez AlekS
Cześć, kupię szyberdach kompletny. Najlepiej z uszczelkami.
Zgodnie z wcześniejszymi opiniami od długiego powinno być to samo.
A jak jest z wersją przed i poliftową? Ma to jakieś znaczenie?
Re: Szyberdach

Napisane:
07 cze 2021, 00:10
przez AlekS
Hej, wiecie jak sprawdzić szyberdach, ktory jest zdemontowany? Można jakoś na krótko pod akumulator podłączyć?
Re: Szyberdach

Napisane:
07 cze 2021, 01:17
przez Jake
Jasne. Na przynajmniej dwa sposoby.
Jesli masz komplet razem z modulem to wystarczy zapodac mu +12V i spinaczem mostkowac piny w trzypinowej wtyczce od przelacznika. Jesli nie masz kompletnej ukladanki, to tez mozesz to przetestowac na "nizszym" poziomie, tam jest zwykly silniczek elektryczny, odpinasz wtyczke od niego i zapodajesz 12V, zmieniajac polaryzacje zmieniasz kierunek obrotów, a wiec otwieranie / zamykanie. W drugim scenariuszu musisz uwazac zeby nie przeciazyc silniczka i/lub czegos nie ulamac, bo pomijasz krancowki i mozesz krecic dalej nawet jak jest max otwarty lub max zamkniety.
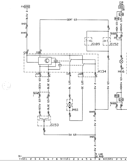
Tu schemat sterowania szyberdachem:

- Trooper Sunroof.png (46.79 KiB) Przeglądane 9617 razy
Ucieta sciezka z prawej strony Cie nie interesuje, to wyzwolenie modułu anti-theft. Cale sterowanie miesci sie na zalaczonym screenie.
Wscibska ciekawosc: Wymieniasz uszkodzony szyber, czy masz fantazje dolozyc szyber do auta w ktorym go fabrycznie nie bylo?
Re: Szyberdach

Napisane:
07 cze 2021, 08:38
przez AlekS
Mam uszkodzony.
Z tego co wczoraj zaobserwowałem przy zabawie ręcznie próbując kręcić to z jednej strony nie rusza się ten ślimaczek (ta linka). Sam silnik pracował ale mam wrażenie, że poprzedni właściciel za dużo próbował i może tam już być zjechane.
Rozkręcę bardziej i posprawdzam ale zakładam, że będę musiał kupić.
I plan jest taki. Wymontowałem cały i cały sprawny zamierzam wkręcić.
I tak przy okazji. Te dwie szpilki na przodzie to są wkręcane czy przyspawane do karoserii? Jedną mam ułamaną i może spróbowałbym to naprawić jak mam na wierzchu.
Re: Szyberdach

Napisane:
07 cze 2021, 16:02
przez Legend
jak już tam dłubiesz to wyciagałeś cały szyber ze stelażem? szykuje mi się naprawa blachy w tych rejonach

I licze, że uda się wyjać samą szybę z uszczelką bez robiórki podsufitki.
Re: Szyberdach

Napisane:
07 cze 2021, 20:54
przez AlekS
Cały stelaż wyciągnąłem. Plan jest taki, ze ewentualnie cały "nowy" zamontuję. Niestety podsufitkę mam w stanie tragicznym. Rozwarstwia się. Nie wiem czy uda się z niej coś zrobić. Na suficie tak źle nie wyglądała.
A szyber była zablokowana linka w rurce i w miejscu silnika jest uszkodzona. Wyczyszczę, nasmaruję i zobaczę czy będzie działać. A można taką linke samą kupić i wymienić?
A propos uszczelki. Mam wrażenie, że jeśli szyberdach się chowa to uszczelkę można zdjąć bez demontażu podsufitki. Podsufitka dotyka stalaż.


Re: Szyberdach

Napisane:
07 cze 2021, 22:42
przez Jake
O! Ale jajo, masz miekka podsufitke? W mojej budzie co na zlom poszla podsufitka była sztywna, z jakiegos kompozytu zywiczno-jakiegos. Ciekawe czy to kwestia rocznika.
Linke szyberdachu na 99,99% beda w PL niedostepne, musialbym probowac ze Stanów, Japonii albo Tajlandii ciagnac. Alternatywnie dorobienie:
http://motolinki.com/https://www.motolinka.pl/
Re: Szyberdach

Napisane:
07 cze 2021, 23:25
przez AlekS
Kiedyś ta podsufitka była chyba całkiem sztywna.
A z tą linką to przypuszczam, ze taniej może być kupić szyberdach

Re: Szyberdach

Napisane:
08 cze 2021, 00:07
przez Legend
coś mi się wydaje, że żeby wyrąbać tą podsufitkę i tego nie popsuć to trzeba wszystkie boczki zrzucić.....
Re: Szyberdach

Napisane:
08 cze 2021, 00:13
przez AlekS
No tak jest. Przynajmniej odchylić od góry. Ja i tak planowałem zdjąć i zrobić porządki.
Re: Szyberdach

Napisane:
08 cze 2021, 00:27
przez Jake
O tak! Do zdjecia podsufitki jest rozbierania na pol popoludnia. Wszystkie cykorłapki u góry (6-8szt), wszystkie górne listwy i całe boczki bagażnika, bo gorne sa pod dolnymi. Plus odkrecenie pasów (4szt), plastiki ze slupków B, lampki wnetrza 3szt.
Re: Szyberdach

Napisane:
15 cze 2021, 20:35
przez Legend
no to u mnie jest taka zgnilizna... nie wiem, serio nie wiem jak takie coś się może stać w budzie z ocynkiem. Co najlepsze, blacha jest żyleta prócz miejsc gdzie jakiś sebix zamocował ozdobne nadkola na wkręty.
Re: Szyberdach

Napisane:
15 cze 2021, 21:23
przez AlekS
To powiem, że grubo.
Ja wkurzałem się na kilka purchli i też po wyczyszczeniu rdzy okazało się, że dziurkę mam ale do tego stanu z Twoich zdjęć to mi jeszcze dużo brakuje.
Re: Szyberdach

Napisane:
15 cze 2021, 22:46
przez Legend
zrobię jak zawsze, czyli ogołocę i pojadę z tym do blacharza i tye. Z góry nie trzeba jakoś pięknie malować bo i tak tego nie widać - na szczęście.
Re: Szyberdach

Napisane:
16 cze 2021, 00:04
przez Jake
W mojej nowej budzie wokol szyberdachu na szczescie atrakcji brak, rdzy zadnej nie widac. Ale mam takie samo cos jak u Legenda przy przedniej szybie

Re: Szyberdach

Napisane:
16 cze 2021, 07:15
przez miras7
Jake napisał(a):W mojej nowej budzie wokol szyberdachu na szczescie atrakcji brak, rdzy zadnej nie widac. Ale mam takie samo cos jak u Legenda przy przedniej szybie

Też mam.... miałem, przy przedniej... i pod nią. To chyba najgorsze miejsce do piaskowania. Robiłem tak w 3 autach i ile bym nie zabezpieczał to i tak sprzątania więcej niż roboty
Re: Szyberdach

Napisane:
17 cze 2021, 03:15
przez Jake
Stara buda o dziwo wokol przedniej szyby była jak dzwon. Jak wymienialem szybe to sam bylem zaskoczony ze po wycieciu starej na podszybiu i ramce ani purchelka. No ale za to nie miala polowy przedniego pasa i tylnych nadkoli. Nowa nadkoli tez nie ma, ale za to ma przod xD Ciekawe ze jedna gnije tu, a druga gnije tam.
Re: Szyberdach

Napisane:
17 cze 2021, 09:30
przez Legend
to, że gnija pod przednią szybą to zazwyczaj robota szklarzy, którzy wycinając starą przednią szybę uwalą elementy podszybia linką no i katastrofa gotowa. W żadnym monetreyu z fabryczną przednią szybą nie widziałem na ramce korozji.